土木在线论坛 \ 装修设计 \ 家装设计 \ 178㎡精装房改造,体块穿插变换,赋予极简空间流动感和韵律美!

178㎡精装房改造,体块穿插变换,赋予极简空间流动感和韵律美!

发布于:2022-09-02 10:50:02 来自:装修设计/家装设计 [复制转发]
屋主是一对刚留学回国处于初创期的90后情侣,原本精装房的风格不符合屋主的审美标准。 由于屋主 婚期是2021年5月初,留给改造的时间除去过年及疫情返城限制不到2个月的时间。


图片

图片
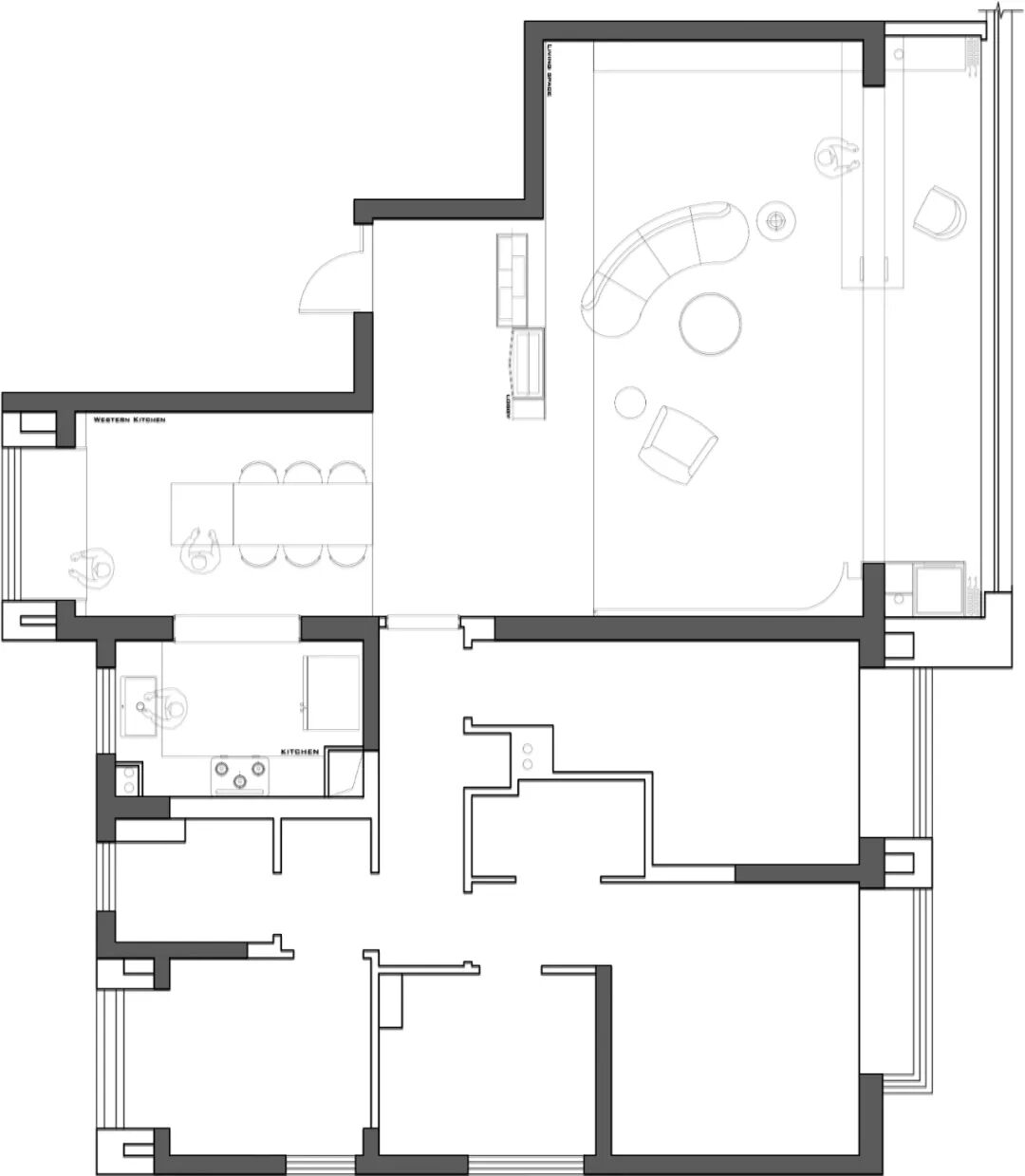
▲ 平面布局图

业主在购房款里已经花费了装修的钱,拿到手发现功能格局跟装饰材质并不能满足需求,我们也希望尽可能的少花钱,最大限度去解决问题。

 户型优缺点:
1、原精装房客厅4*5比例,装修遵循轴心对称原则的墙板造型,地面的波打线限制了区域;
2、门口鞋柜处正式智能化弱电柜位置,地面也有一块雕花的大理石;
3、每个区域都比较方正,是精装房比较合理的装修标准;
4、观景双阳台,可以无遮挡看见美丽的太湖。

设计策略:
1、拿掉了客厅相联的一个卧室的墙跟双阳台的移门,让公区最大化,再补充功能性;
2、入户的智能化弱电柜和玄关结合在一起,考虑整体性;
3、保留了原地面的大理石,采用地毯整铺;
4、墙面顶面装饰材料进行拆除,保留设备类。

图片

把功能鞋柜作为玄关延伸,钢结构基础框架保证呈现上下镂空的透光跟材质衍生。

图片

在空间布局角度,这里是压迫转折的区域,功能上补齐鞋柜、包、钥匙、换鞋整个功能流程需求。

图片

入门第一视角转折到第二视角,压迫-转折-豁然开朗。

图片

亚克力全透明的换鞋凳,充满时尚感,与简约的空间氛围相契合。

图片

玄关的鞋柜切面做虚化处理,弱化体量感。

图片

鞋柜隔断了玄关与客厅的视野,增加入户的仪式感,红色的展示柜平衡冷色调空间。

图片

简约的大面积色块,通过色彩变换、线条分割,增加空间的层次感。

图片

氧化铝板结合9厘烤漆板让玄关面得以在起居空间得到衍生。

图片

将书房和客厅合并在一起,虚化空间的界限,营造更开阔的视觉体验。

图片

客厅区域做最简单的块面衍生,补齐实用性功能需求。

图片

灯光上为了保证亮度跟氛围,功能需求,大部分采用立面光源,同时也避免了白色空间的单调,丰富了层次感。

图片

电视背景墙和顶面的双向弧形,弱化梁柱结构。

图片

因为工期跟代价,保留了原地面的大理石,但是因为颜色比较黄,还有限制性的波打线有点破坏整体,最终选择了地毯整铺。

图片
▲ 装饰玩偶

图片

原飘窗改造成橱柜,补充厨房电器的存放,大块面再整合一下。

图片

属于女主人的3米悬空功能长桌,轻盈的姿态,自成一道风景。

图片

图片

黑色的柜体嵌入暖光灯带,冷暖碰撞,恰到好处。


全部回复(0 )

只看楼主 我来说两句抢沙发

家装设计

返回版块

22.34 万条内容 · 389 人订阅

猜你喜欢

阅读下一篇

硬装合同10.5W 现在要我加2.5W 头都大了,咋搞啊? 91平

硬装合同10.5W 现在要我加2.5W 头都大了,咋搞啊?

回帖成功

经验值 +10