土木在线论坛 \ 装修设计 \ 家装设计 \ 140平现代风格装修,横厅格局、魅力时尚,收纳电视墙 电子壁炉设计,正流行!

140平现代风格装修,横厅格局、魅力时尚,收纳电视墙 电子壁炉设计,正流行!

发布于:2022-09-02 10:00:02 来自:装修设计/家装设计 [复制转发]
图片

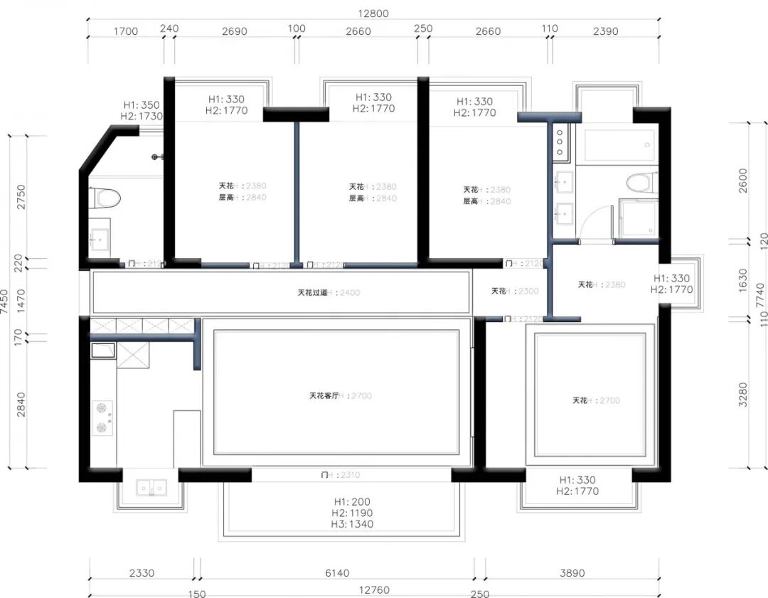
平面图


图片

图片


图片

客厅


图片

图片

图片

图片

图片

图片

图片

图片


图片

餐厅


图片

图片

图片


图片

主卧


图片

图片

图片

图片


图片

次卧


图片

图片

图片


图片

儿童房


图片

图片


全部回复(0 )

只看楼主 我来说两句抢沙发

家装设计

返回版块

22.34 万条内容 · 389 人订阅

猜你喜欢

阅读下一篇

45款庭院围墙,完美你的庭院边界!

~ 一道围墙,无数可能 ~ 围墙,除了能够划分空间隔断人流保证庭院主人隐私安全,某些时候还可以作为庭院景观的一部分。如此功能强大存在感又强的庭院元素,肯定值得院主们认真对待~

回帖成功

经验值 +10