停车场是城市发展的必要产物
停车问题受到规划者、城市管理者以及公众的广泛关注
车是交通出行的必要环节
“停车设施”不仅是城市基础设施的主要构成部分
也是城市居民进行各种生产活动的必要物质条件
富有设计感又实用的停车设施是大势所趋
增设停车空间和停车设施
不但能有效提升城市居民生活质量
还能提升对城市土地的利用率

简约高级的停车场
不但能缓解城市交通压力
还能提升城市形象
下面小编整理了10个各具特色的停车建筑案例
和大家一起分享
弗拉门特岛停车场
西班牙
Marià Castello Martínez

西班牙的福门特拉岛因为旅游的需求,在沿海区域设置了一个有136车位的停车场。停车场面积3018平方米,为了不给地面交通带来压力,建筑师将停车场放置在地下,地上部分形成一个公共空间。

插入一个纵向的庭院,为停车场引入采光和通风,并在保持和地上部分公共空间的林夕。庭院中放置着造型简单的元素,并屹立起一个简单的高体块——一个联系地上部分和地下部分的电梯,并配有一个自动提款机。



所有的建设元素都用混凝土进行表达,连花盆和挡土墙也不例外。对材料细致的运用将其的美丽充分展现出来。采光使用LED照明,纵向庭院还可提供光照和自然通风,提高能源使用效率并降低了维护成本。


项目地点: Pla?a d’Europa. Es Pujols. Formentera. SPAIN
建筑设计: Marià Castelló Martínez
摄影: Estudi Es Pujol de s’Era

△鸟瞰
道峰山停车楼最初由首尔市政府规划,是首尔和议政府这两大都市交界处的新交通系统的一部分。同时,首尔大都会基础设施总部希望在本项目中额外设置一系列包括咖啡厅和休息空间等在内的公共设施。因此,本项目不再仅仅是一个将通勤者与交通联系起来的结构,更是一个将人与人彼此联系起来的场所和城市环境。


△剖视及细节
考虑到传统停车楼中存在的主要问题:都是一个单独的巨大体量,道峰山中心停车楼的设计团队提出了一个具有创新性的设计概念,即在建筑的外围护结构中插入一系列彼此分离的金属带。

△近景鸟瞰

△外景

△局部

△内部
在屋顶空间中,外表皮的金属带变成了一个人造的景观,创造出一个公共花园和广场。由倾斜屋顶打造而成的人造地形则在建筑与道峰山景观之间构建出一种视觉联系和体验式对话。

△屋顶公共空间

△夜景

△平面图
项目地点: Seoul, Republic of Korea
建筑设计: JK-AR (Jae Kim Architects + Researchers)
占地面积: 6,135.00 m?
摄影: Kwang Sik Jung, Sungmin Yoon
5层开放式停车场
法国
GaP Architectes

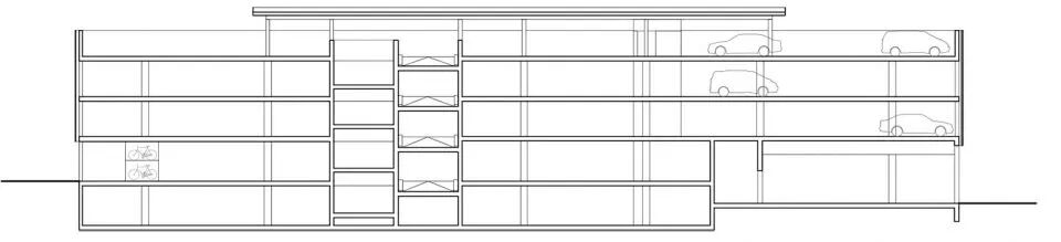
这座5层的停车场位于法国伊泽尔省格勒诺布尔,是当地城市更新企划的第一个基础设施。建筑师期望设计一个功能和空间清晰,布局开放灵活,充满光线的明亮建筑。同时建筑内的停车活动能从建筑周围看见,提升该建筑在社区中的参与力度。

建筑师采用了极富表现力但是有节省空间的中央双螺旋坡道,避免停车场的流线在每个楼层中的其它区域绕来绕去。流线在建筑中尽可能独立的设置,保证面对突发事件的灵活性。







△剖面图
建筑设计 : GaP Architectes (H. Grudzinski Architecte)
设计团队: Hugues Grudzinski architect and Baptiste Robin assistant.
项目地点 : Grenoble, Isère, France
摄影 : Gap/Robin
04.
乌来乡立体停车场增建案
台湾
Q-LAB


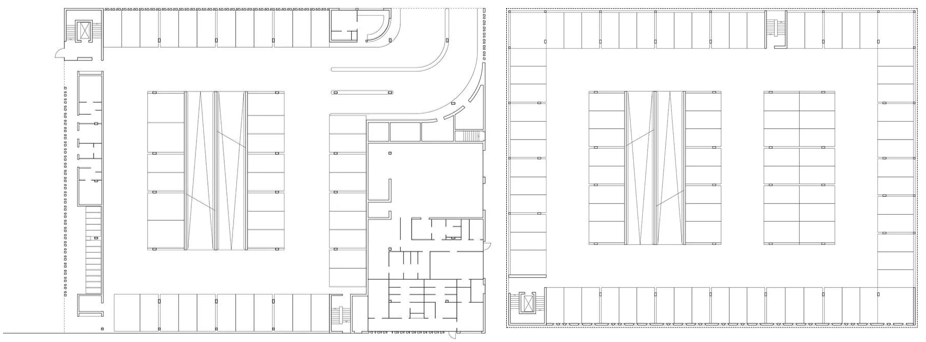
△项目概况
乌来区为新北市唯一的原住民区,拥有秀丽的自然景观以及独特的泰雅族文化资产。平日游客络绎不绝,例假日期间更是车满为患,停车空间严重不足,因此新北市政府交通局特规划『乌来乡立体停车场增建工程』。

本案萃取乌来大自然山景的峰陵线当作建筑创作的意象发想,搭配泰雅族织品文化之带状条纹图腾与纹面之特色,意图将之抽象化,并以大地之雕塑做为本案量体及视觉上的设计泉源。


好的建筑可以历久弥新,不需要譁众取宠。然而以台湾为例,目前诸多公共建物乃至民间建案在外观造型上仍常有过多且不需要的装饰点缀,语彙不仅繁複也不具任何意义。





△夜景

△平面图
(曾永信、曾柏庭、吴东翰、黄子豪、张家瑜、陈智晟)
结构:筑远工程顾问有限公司(张盈智、朱昭玮)
纽约停车楼
美国
SRG Partnership

△鸟瞰
纽约停车楼为员工和访客提供了1994个停车位,集安全性、效率、功能性和运动的力量与精神为一体。停车楼作为补充园区构成的动态设施,重新定义了人们对停车楼的看法。

△项目外观
停车楼的外形体现了运动的主题和大胆的理念。每个停车场之间相互分隔,形成起伏的屋顶和端墙。亮橙色金属板突显出体量的分隔,使建筑看起来似乎向前跳跃,突出运动感且符合人体尺度。

△流线型车道

△起伏的屋顶和端墙
纽约停车楼巧妙地以纽约的快节奏和“生动的城市”氛围为主题。六层停车楼均印有纽约冠军队的图像、标志和颜色。庭院是定义和区分传统停设施的特色空间,它通过沥青路面、鹅卵石元素以及艺术家涂鸦墙散发着城市气息,篮球、壁球和五人制足球设施为娱乐活动注入了纽约的独特活力。


△运动场
停车楼材料的选择和寻路技术同样有助于实现运动的主题。建筑表皮是简约的波纹金属板,上面印有代表公司商标的莫尔斯电码孔洞,这些代码斜向穿过四个不同位置、四种不同颜色的铝立面。

△细节

△夜景
建筑设计: SRG Partnership
设计团队: Jeff Yrazabal, Rick Zieve, Dennis Forsyth,
Aaron Pleskac, Phillip Lopez, Trevor
景观设计: PLACE Studio
灯光设计: Luma
摄影: Jeremy Bittermann
A1停车楼
阿姆斯特丹
XVW architectuur

△项目外观
在阿姆斯特丹北部的Buiksloterham区,XVW architectuur设计的社区停车楼与地下健康中心综合体现已完工。Buiksloterham曾经是一片沿河展开的工业区,先已转变为发展迅速的职住综合区。新建的停车楼以光滑的几何表皮和标志性外观凸显了当地特色,成为Buiksloterham区的新地标。

A1停车楼总共有250个车位,车辆像马厩里的马一样排列整理、便于提取,居民可不必再将车停在室外街道上。

建筑师采用斜面钢网构成大楼的立面,将停车楼打造为街区的入口的标志。表皮的浮雕图案捕获了光线,塑造出动态的视觉效果,使建筑显得十分轻盈。

刻有镂空图案的哑光漆钢板能够反射光线,赋予了停车楼变幻的外观。表皮映照着周围的风景,随着人与车的经过展现出不同色彩。大楼底层以木板条覆盖,创造出温暖、细腻、人性化的临街界面,天然木材与上方冷峻、光滑的钢面板形成了鲜明的对比。


△平面图
项目名称: Parkeergarage A1
项目地点: Amsterdam, Buiksloterham
建筑设计: XVW architectuur
摄影:XVW architectuur
07.
Gnome停车场
荷兰
MEI Architecture

这是位于阿尔梅勒市中心的Gnome停车场。停车的整个外墙用的是穿孔材料,上面有风车,花园租入,鸟屋等等当地传统团象征。传统材料提供最大限度的自然通风,并营造一个开放氛围。

虽然建筑的形体中规中矩,是一个满满占据场地的方盒子,但是有趣的外表皮打破了沉闷的形体。这样的不锈钢穿孔钢板是和汽车制造公司合作生产,利用三维建模技术和特殊的金属打孔机进行生产,不光外观时尚,也能作为结构的一部分使用。

穿孔板形成有效的分隔界面,同时保证了车库白天的明亮。相比之下内部的装修相当简单,但是透过这层特别的表皮,建筑白天黑夜都很有魅力,同时,这样的设计降低了整个造价的25%。


△夜景
设计公司:Mei architecten en stedenbouwers
设计团队:Robert Winkel, Menno van der Woude, Hennie Dankers,
Robert Platje, Pepijn Berghout, Mauricede Ruijter, Nars Broekharst

△项目外观
Angle Lake中转站及广场是一处可持续的多功能设施,其中包括一座停车场建筑,能够容纳1150辆汽车,以适应未来的使用需求。

△建筑立面
车站的设计灵感来源于William Forsythe的即兴作品《舞蹈几何》,在该作品中,舞者们根据空间中折叠弯曲的线条来扭动身姿。建筑师认为简单的直线能够形成无限的动作和位置,同时无须任何过渡。

△7层混凝土建筑主体

△细部
这座总面积达七英亩的综合体是国际设计竞赛的最终成果。建筑的主体是一座7层的、现场浇筑的后张预应力混凝土结构,其外立面使用了7500多块定制的蓝色阳极氧化铝板。

△内部视角
建筑的每一处结构形式都需要基于几何学上的合理性。也就是说,在制作结构部件的过程中需要进行大量的测量和绘制,并且不依赖于自动化的生产设备。


△地下车库

△场地平面图

△剖面图
项目名称: Angle Lake Transit Station and Plaza
项目地点:Seatac
建筑设计: Brooks + Scarpa
摄影:Ben Benschneider and Brooks + Scarpa
K/R, Clavel Arquitectos, J. Mayer. H., WORKac, Nicolas Buffe
△项目概览
物馆停车楼位于迈阿密设计园区,该园区着重于创新艺术,设计和建筑。灵感来源于超现实主义的室内游戏Exquiste Corpse(精致的尸体),同时他把世界各地的设计师聚在了一起。在Riley的指导下,每个参与的建筑师最终都分配到了一块区域来自由发挥,进行独立创作和设计,最终诞生出这座独特且现代的建筑版Exquisite Corpse.
在园区东北部的第1大道和第41街的拐角处,就是WORKac纽约分部与柏林分部的J.MAYER.H.共同设计的立面,名为Ant Farm(蚂蚁农场),面朝第一大道。

Mayer H.设计的立面叫做XOX(拥抱和亲吻),以相互联结的大块拼图为表现形式,并与转角处的WORKac的立面相接。

立面3:
金属板上的漫画
该立面是车库的出入口立面,毗邻41街,是现居日本的法籍建筑师Nicolas Buffe的作品。该立面以深色圆孔金属板为背景,以激光切割金属和纤维树脂塑料材质的平面和立体元素为特色。

在Nicolas Buffe设计的立面和K/R事务所设计的立面之间,就是西班牙事务所Clavel Arquitectos所设计的Urban Jam(城市拥堵)。其设计灵感来源于迈阿密设计园区的城市生活复兴——让旧建筑和废弃空间重现生机。

在41街最西边,当代艺术学院的对面,是K/R事务所的纽约和迈阿密分部设计的立面——Barricades(路障)。设计灵感来自迈阿密的马路景象,尤其是随处可见的橙白条纹的路障。

设计公司: K/R, Clavel Arquitectos, J. Mayer. H., WORKac, Nicolas Buffe
项目地点:Miami
停车场坐落于滨海湖畔这一战略性位置上,该栋建筑除作为停车场外,还承载了船舶码头和消防站等功能。它的存在不仅解决了社区需求,还重新组织了社区结构,加强了周边社区与港口的联系。

建筑如同庞然大物般植入场地之中。带有不规则波浪纹理的立面穿孔金属板,为建筑内部营造了悦动又丰富的光影空间。暖调的金属外壳在日光下闪闪发光,它隐匿在城市之中,却又优雅的向人们宣誓它的存在。


△丰富的光影空间

△室内空间


△平面图

△剖面图
设计公司:Auer Weber
项目地点:Germany
摄影:Aldo Amoretti
注:
本文来源于建筑周,版权归原作者所有,转载请注明。内容仅供交流学习,不做任何商业用途, 如有侵权请联系后台删除。
全部回复(1 )
只看楼主 我来说两句 抢板凳停车场是城市发展的必要产物
停车问题受到规划者、城市管理者以及公众的广泛关注
车是交通出行的必要环节
“停车设施”不仅是城市基础设施的主要构成部分
也是城市居民进行各种生产活动的必要物质条件
富有设计感又实用的停车设施是大势所趋
增设停车空间和停车设施
不但能有效提升城市居民生活质量
还能提升对城市土地的利用率
回复 举报