在废水分盐零排放中,纳滤进水水质往往是很差的,进水COD比较高,考虑到纳滤膜不耐碱洗,在设计时可提高各段错流流量,保证每只膜壳进水流量在10t/h以上,减缓膜污堵速率,且分散膜污染。
某工业废水零排放项目中,反渗透浓水进入纳滤分盐,其COD约320mg/L,水中硫酸根离子含量为7608mg/L,氯离子含量为6630mg/L,钠离子含量为7054mg/L。

处理水量40t/h,进水设计非氧化性杀菌剂投加,纳滤设计回收率80%,采用一级两段,设计通量20LMH。
纳滤膜采用苏伊士DK8040F30型号,共计48支膜,膜壳采用6芯装共8支,采用4:
4排列(无须考虑传统渐缩式排列比)。
第一段膜计算结果
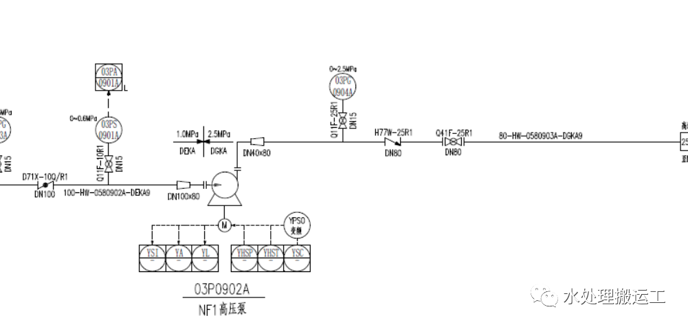
高压泵参数设计Q=40t/h,H=180m,变频运行,考虑到氯离子浓度过高,材质选用SS2205。

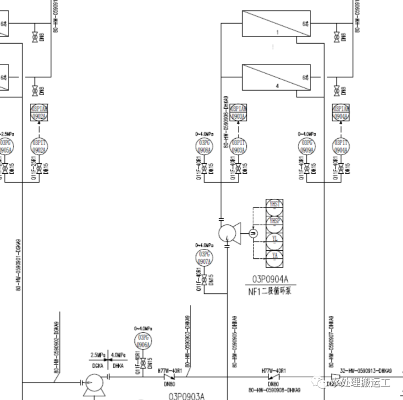
第二段膜采用了单独的浓水回流设计,设计回流量20t/h,保证第二段单支膜壳流量10t/h,设计段间增压60m。
段间泵采用一台增压泵Q=20t/h,H=60m + 一台循环泵Q=40t/h,H=30m,浓水回流至段间增压泵出口。

水泵采用格兰富BM系列长轴离心泵,安装在机架底部,节省占地。

运行能耗:装置运行功率合计=高压泵37kW+增压泵5.5kW+循环泵5.5kW=48kW·h
处理每吨水需要能耗为1.2kW·h
内容源于网络,如有侵权,请联系删除
相关资料推荐:
https://ziliao.co188.com/d63551725.html
知识点:废水零排分段错流循环纳滤设计
全部回复(0 )
只看楼主 我来说两句抢沙发