根据国家、本省及我市有关标准、规范及文件规定,结合实际,特制定本要点。
1、桁架钢筋两根下弦筋与叠合板底筋应绑扎牢固,绑扎点间距不大于 600mm,且边距不大于 300mm;
2、叠合板边模出筋应有防止上移的固定措施,不得仅采用泡沫块等非专用型材封堵模具槽孔的措施。
3、混凝土浇筑时应在模台上留制同条件养护试块,脱模时其试块强度不得低于 15.0Mpa,并满足脱模要求后,方可同批脱模。
4、当日平均气温低于 8℃时,采用蒸汽养护等措施提高混凝土早期强度,以利于脱模。
5、无特殊规定时,混凝土出厂时的强度不得低于设计强度75%。
6、采用与套筒厂家提供产品相匹配的数控电动滚丝机加工套筒连接钢筋丝牙,确保套筒筋与套筒连接可靠。
7、套筒处的模具开孔应按设计要求激光开孔,确保位置准确。
8、套筒与模具可采用专用型材方式固定,保证紧密贴合固定。套筒安装前应检查其通透性。
9、连接进浆孔和出浆孔宝塔头的波纹管应具有抗折、抗变形、伸缩性能,波纹管插入宝塔头后应具有自锁能力,与模台面应采用配套自锁性能的磁性固定器固定。
10、进、出浆孔位置位于模台面时,宝塔头应水平或向下,波纹管长度应适中,确保波纹管弯折角小于 90 度。混凝土表面的灌浆孔下缘距构件底面不小于 30 ㎜,混凝土表面的出浆孔下缘高于出浆孔宝塔头不小于 50 ㎜。
11、应对成品构件的套筒、注浆孔、出浆孔采用通气法等进行全数检查,并做好检查标记,合格后方可出厂。
12、拉结件入厂时应做复试,复验项目包括:外观检验、纤维含量、尺寸和尺寸偏差、拉伸强度和拉伸弹性模量、层间剪切强度、弯曲强度和弯曲弹性模量。
13、采用 FRP 拉结件时,FRP 拉结件布置及安装应符合产品使用说明书要求,经设计验算复核确定。其布置应符合本文附录规定,并经设计单位确认。
14、采用 FRP 拉结件必须提前对保温板进行预设开孔,孔径与尾部大小一致。严禁 FRP 保温拉结件直接插入保温板和内、外叶板混凝土中。
15、采用正打工艺制作构件时,外叶板混凝土应振动(振捣)密实,确保拉结件在内外叶混凝土中的有效握裹。
16、预制构件键槽、粗糙面的设置应符合下列规定:
(1)粗糙面的面积不小于结合面的 80%,预制板的粗糙面凹凸深度不小于 4mm,预制梁端、预制柱端、预制墙端的粗糙面凹凸深度不小于 6mm。粗糙面不得采取带有凹凸面的光面代替;
(2)预制板、梁与后浇混凝土叠合层之间的结合面应设置粗糙面;
(3)预制梁端面、柱的底部应设置键槽且设置粗糙面;柱顶应设置粗糙面;
(4)预制剪力墙的顶部和底部与后浇混凝土的结合面应设置粗糙面;
(5)与后浇混凝土连接的叠合板出筋侧面、悬挑构件出筋面应设置粗糙面。
17、用于后浇混凝土支模用以及外叶板加固用的预制构件预留的对拉螺栓孔,遵循少设置的原则,其间距应经设计计算确定,确保对拉螺栓、背楞以及面板强度、刚度满足要求。
18、预制构件对拉螺栓孔布置间距要求:
(1)保温复合外叶墙板最下一排对拉螺栓孔距内叶板底部间距≤300 ㎜,最上一排对拉螺栓孔距内叶板顶部间距≤200 ㎜。
(2)非保温复合墙板最下一排对拉螺栓孔距构件底部间距≤300 ㎜,最上一排对拉螺栓孔距构件顶部间距≤200 ㎜。
(3)PCF 板、PB 板最下一排和最上一排对拉螺栓孔距构件底部和顶部间距均≤300 ㎜。
(4)对拉螺栓孔竖向间距≤800 ㎜。
(5)对拉螺栓孔距构件左右两侧间距(有外叶板时,指距内叶板左右两侧间距)宜为 100 ㎜。
19、预制外墙对拉螺栓孔应做成外大内小的喇叭状孔型,可采用工厂加工的工装件制作,小孔直径≤25 ㎜,大孔直径≤35㎜,且大小孔直径相差≥5 ㎜。
20、预制外墙对拉螺栓孔位置应按设计图纸要求布置,拉模孔中心位置偏差≤10 ㎜。
凡本要点与现行标准规范规定不一致时,应以现行规范标准规定为准。
附录:
一、预制混凝土夹心保温墙板 FRP 拉结件布置相关规定:
1、FRP 拉结件横向间距≤500 ㎜,竖向间距≤600 ㎜(图一)。
2、拉结件距内叶板左、右边缘不得小于 100 ㎜,且不得大于 150 ㎜,距上、下外叶板边缘不大于 300 ㎜(图一)。

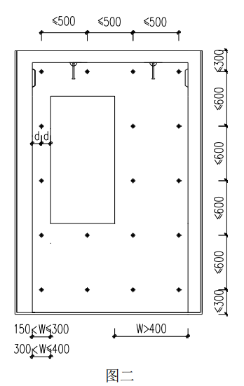
3、遇门窗洞口边的内叶板,150 ㎜<宽度≤300 ㎜时,拉结件竖向可居中设置;300 ㎜<宽度≤400 ㎜时,竖向宜采用梅花形式布置,也可居中设置;宽度>400 ㎜时,横向间距≤500 ㎜,竖向间距≤600 ㎜,且横向不得少于 2 个拉结件(图二)。

4、当左、右外叶板外伸长度≤300 ㎜时,外伸外叶板可不设置拉结件,但内叶板中的拉结件距边缘应为 100 ㎜,且应符合下列规定:
(1)当外叶板外伸长度≤150 ㎜时,外伸外叶板可不设置拉结件,内叶板边缘拉结件竖向间距应≤600 ㎜;
(2)当 150mm<外叶板外伸长度≤200mm 时,内叶板边缘拉结件竖向间距应≤500 ㎜(图三);
(3)当 200mm<外叶板外伸长度≤300mm 时,内叶板边缘拉结件竖向间距应≤400 ㎜(图三)。

5、当外叶板外伸长度>300 ㎜时,外叶板应设置拉结件,且与内叶板拉结件横向间距≤500 ㎜,竖向间距≤600 ㎜(图四)。

二、预制外叶保温板 FRP 拉结件布置相关规定:
1、PCF 板 FRP 拉结件布置
(1)拉结件距外叶混凝土板边缘不得小于 100 ㎜,且不得大于 150 ㎜。
(2)当 PCF 板边宽≤300 ㎜时,横向至少设置 1 个拉结件,竖向间距≤600 ㎜(图五)。

(3)当 PCF 板边宽>300 ㎜时,横向至少设置 2 个拉结件,且拉结件横向间距≤500 ㎜,竖向间距≤600 ㎜(图六)。

2、PB 板 FRP 拉结件布置
(1)拉结件距外叶混凝土板边缘不得小于 100 ㎜,且不得大于 150 ㎜。
(2)拉结件横向至少设置 2 个拉结件,且拉结件横向间距≤500 ㎜,竖向间距≤600 ㎜(图七)。

(文章来源于网络,如有侵权请联系删除)
相关链接:【装配式建筑】预制构件监理质量控制要点
知识点:预制构件质量控制要点
0人已收藏
0人已打赏
免费1人已点赞
分享
装配式规范
返回版块2544 条内容 · 86 人订阅
阅读下一篇
人民日报:以智能建造助力“中国建造”借助5G、人工智能、物联网等新技术发展智能建造,成为促进建筑业转型升级、提升国际竞争力的迫切需求 像搭积木一样装配预制构件,装配式建筑项目能有效减少污染、节约资源和降低成本;外墙喷涂机器人开展高空作业,效率可达人工的3至5倍;楼宇自控系统实时调节室内温度、照明等,让建筑有了“智慧大脑”……近年来,我国建筑业加快工业化、数字化、智能化转型,发展质量和效益进一步提升。
回帖成功
经验值 +10
全部回复(0 )
只看楼主 我来说两句抢沙发