土木在线论坛 \ 建筑设计 \ 公共建筑设计 \ 挡土墙之石砌挡土墙

挡土墙之石砌挡土墙

发布于:2022-08-17 16:53:17 来自:建筑设计/公共建筑设计 [复制转发]

知识点:石砌挡土墙


图片

图片
图片

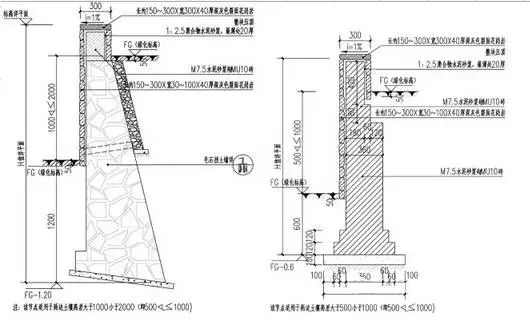
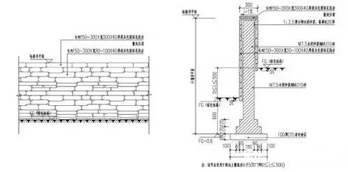
某水保工程石砌挡土墙设计图(共1张)


全部回复(0 )

只看楼主 我来说两句抢沙发
这个家伙什么也没有留下。。。

公共建筑设计

返回版块

51.17 万条内容 · 447 人订阅

猜你喜欢

阅读下一篇

各挡土墙的适用条件

挡土墙类型 适用条件  重力式挡墙 适用于一般地区、浸水地区和地震地区的路肩、路堤和路堑等支挡工程。墙高不宜超过12m,干砌挡墙的高度不宜超过6m。  锚杆式挡墙 宜用于墙高较大的岩质路堑地段,可用作抗滑挡土墙,可采用单级墙或多级墙,每级墙高不宜大于8m,多级墙的上、下级墙体之间应设置宽度不小于2m的平台  锚定板挡墙 宜使用在缺乏石料地区的路肩墙或路堤墙,但不应建筑与滑坡、坍塌、软土及膨胀土地区。可采用肋柱式或板壁式,墙高不宜超过10m,肋柱式锚定板挡墙可采用单级墙或双级墙,每级墙高不宜大于6m,上、下级墙体之间应设置宽度不小于2m的平台,上下两级墙的肋柱宜交错布置

回帖成功

经验值 +10