知识点:智能化系统图
本合集主要包括:
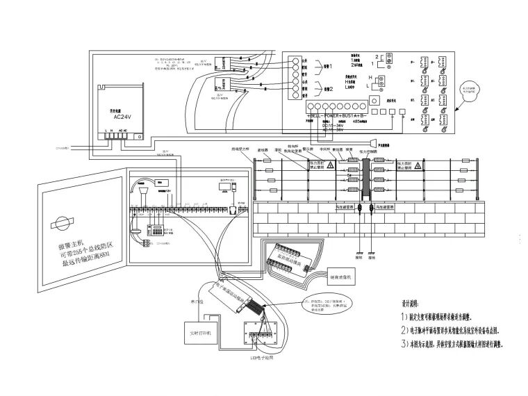
门禁安装示意图
安装示意图
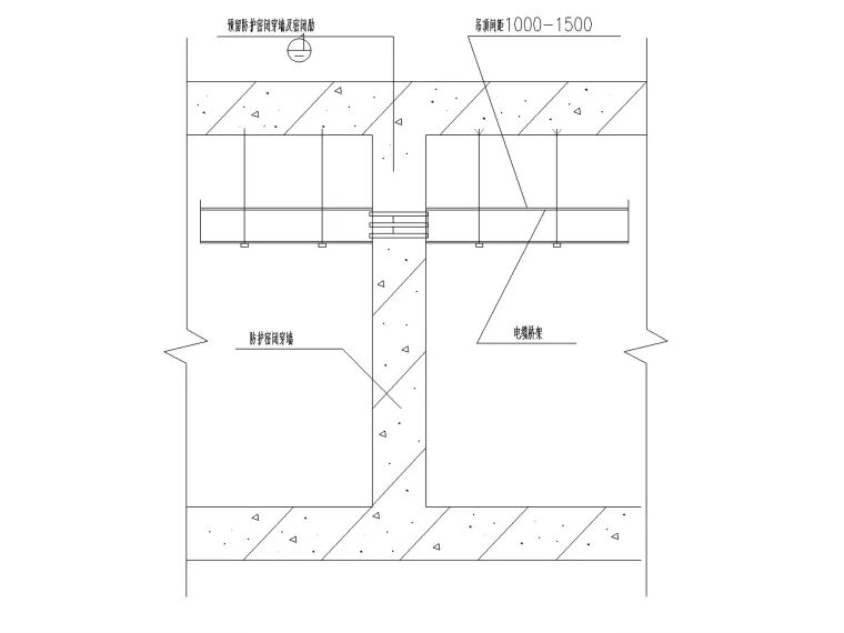
电缆桥架穿防护密闭隔墙示意图
摄像机立杆示意图
周界探测器安装示意图
报警键盘防区大样图
小区出入口停车库管理示意图
电子脉冲安装示意图
弱电手孔井剖面示意图
可视对讲安装示意图
可视对讲背面管路示意图
部分图纸截图:

电缆桥架穿防护密闭隔墙示意图

电子脉冲安装示意图

接地母排安装图

门禁安装示意图

弱电手孔井剖面示意图

室外设备箱接地大样图

停车场管理设备安装布置图

停车库管理大样图

图纸内容全览
相关推荐链接:
1、智能化弱电系统图
0人已收藏
0人已打赏
免费1人已点赞
分享
成套电气设备
返回版块15.97 万条内容 · 620 人订阅
阅读下一篇
消防报警系统图看什么?高手一定要看门道知识点:消防报警系统看图要看高清,听歌要听高潮,这话没毛病。专业人士了解一个系统、评估一个系统,或做一个系统的设计,喜欢先看系统图,那么看系统图看什么?看系统图的人都在想什么?当你读到这篇文章的时候,也可以问问自己要看图里面的什么内容,对,就是你的看图动机。以消防相关的火灾自动报警系统、消防电源监控系统、消防应急照明与疏散指示系统的系统图为例,看系统图需要关注、理清以四方面内容。一、系统结构。设备分布,现场设备、中心设备、通信、供电的各部分之间的相互关系,包括主次、空间、范围。
回帖成功
经验值 +10
全部回复(0 )
只看楼主 我来说两句抢沙发