近年来,政府一直致力于加快推进住房建设领域高质量绿色发展,促进建筑行业转型升级。自2013年国务院发布《绿色建筑行动方案》以来,国家密集颁布关于推广装配式建筑的政策文件,已经把大力发展装配式建筑提升至国家战略层面。本文从定义出发,解析装配式建筑相关概念及主要指标。同时结合实际项目,分析装配式钢结构建筑的装配率方案及实施细节。
在文章中你将收获:
1、 装配式建筑的定义及三个重要指标;
2、 装配式钢结构建筑的合理装配率;
3、 装配式钢结构建筑的结构体系、围护墙板及设备预留预埋三方面的实施细节。
1.
定义及三个指标
装配式建筑是指把传统建造方式中的大量现场作业工作转移到工厂进行,在工厂加工制作好建筑用构件和配件(如楼板、墙板、楼梯、阳台等),运输到建筑施工现场,通过可靠的连接方式在现场装配安装而成的建筑。
与装配式建筑息息相关的主要有三个指标:装配式建筑面积比例、预制部件装配率、混凝土预制率。
首先装配式建筑面积比例就是指装配式建筑面积占总建筑面积的比例。其次预制部件装配率是指单体建筑室外地坪以上的主体结构、围护墙和内隔墙、装修和设备管线等采用预制部品部件的综合比例。混凝土预制率是指工业化建筑室外地坪以上的主体结构和维护结构中,预制构件部分的混凝土用量占对应部分的混凝土总用量的体积比。
其中,国标评价标准是采用单体装配率作为计分原则,单体装配率要求不低于50分,其中36分是固定项分值。根据装配方案选择的不同,对应的混凝土预制率可在20%~30%左右浮动。
机遇与挑战
随着建筑行业的不断发展,国家越来越重视建筑行业的能源和环境等问题。推行装配式建筑已然成为我国建筑行业发展的必然趋势。为大力推进其发展,各地相继出台不同要求的装配式建筑政策,装配式建筑面积占比、装配率等指标有逐年提高的趋势。

然而,伴随混凝土装配式建筑而来的机遇和挑战也日趋明显:
在施工效率层面,预制剪力墙自重较大,施工至高层处会存在明显的吊装困难;竖向构件连接采用灌浆套筒连接,对于施工精度要求高;且后注浆只能通过现场肉眼判别是否注满,易存在人为施工缺陷,影响检测效率。
在结构安全层面,竖向构件采用灌浆套筒连接,一方面无法保证浆液是否注满,另一方面目前检测手段也无法保证其在地震作用下的连接是否可靠。
是否存在一种结构既能满足政策高装配率要求,同时又能确保结构传力合理、连接可靠呢?
这就是本文的“主角”——装配式钢结构建筑,钢结构是天然的装配式建筑,具有“轻、快、好、省”的优点,广泛应用于大型厂房、场馆、超高层等领域。近年来随着钢结构体系的创新和改良,钢结构在民用住宅中的应用也逐步推广开来。
接下来就以一个实际项目案例,介绍装配式钢结构的应用。
2.
项目背景
该项目总用地面积66398.84㎡,容积率不大于2.5,总建筑面积217527.86㎡,其中地上总建筑面积165965.77㎡,建筑限高100米。
根据当地政策及规划条件,该项目需要满足“装配式建筑面积不少于地上总建筑面积的15%,其中钢结构建筑面积不少于地上总建筑面积的7%”的要求。
本项目装配率要求遵循国标且评分细则与国标一致,具体如下:

方案比选
第一步:先满足15%装配式面积占比要求
该项目需要满足“装配式建筑面积不少于地上总建筑面积的15%,其中钢结构建筑面积不少于地上总建筑面积的7%”的要求。结合强排存在两种方案的可能性。
1.50%钢结构,50%预制混凝土结构
本方案两栋楼分别采用钢结构和混凝土结构,满足政策下限要求,理论上为成本最优方案。然而,若一栋楼采用钢结构,一栋楼采用预制混凝土结构,不利于总图规划及户型配比设计。且预制混凝土结构施工精度要求高,易存在施工缺陷。
2.100%钢结构
本方案即两栋楼结构都选用钢结构,能够避免两栋楼的差异,在总图和户型设计上更好统一。并且钢结构不需要现浇借点,有利于施工速度和质量。
因此,两栋楼都采用钢结构更合理。
第二步:100%钢结构的装配率方案推演
钢结构是天然的装配式建筑,但同时也存在含钢量高、建安费用高等实际问题。如何做到经济、合理是本方案关注的重中之重,而装配率作为建筑装配化程度的主要衡量指标,会直接影响项目最终的经济指标。
1.装配率必得分
根据国标中装配式建筑评分表,钢结构建筑中钢柱和钢支撑均为成品钢构件,且占竖向构件比例100%,所以主体结构部分得分至少为30分。而围护墙和内隔墙最最低得10分,装修采用全装修最低得6分。因此,采用100%钢结构建筑装配率必得分为46分。而国标最低要求是50分,因此还需要其他部件得分来满足。

2.水平构件投影比例70%的做法
要满足50%装配率,还需要至少4分。常规做法是部分水平构件采用装配式。按装配式建筑评分表,在水平构件投影比例达到70%以上时,可至少得10分,此时装配率得分为56分。

3.水平构件投影比例100%的做法
在项目实际建设过程中,常选用业内认可度高的钢筋桁架楼承板,钢筋桁架与底板通过电阻点焊连接成整体的组合承重板,目前已经实现了机械化生产。它极大地提高楼板施工质量,显著加快施工进度,保证施工安全。
选用钢筋桁架楼承板时,其楼板是全部装配式预制。在水平构件的计算过程中,楼板装配式的占比对水平构件装配式比例起决定性作用。
所以其装配式占比能达到100%,即该方案采用水平构件近100%的装配式做法。此时水平构件分数能达到满分20分,最终评分66分。在满足高装配率的同时也实现了安全、适用、经济、美观的建筑目标。
综上分析,本项目装配式建筑方案确定为装配式钢结构建筑,装配率66%。
实施细节
下面从装配率的各子项构成,分析装配式钢结构建筑的实施细节。
1.钢结构骨架
本项目钢结构采用CFT柱型钢框架-支撑体系。从图2可以看出,钢支撑布置在无窗外墙、分户墙、楼梯间处,不影响建筑使用功能;钢柱、钢梁可暗藏于建筑墙体内,结构布置与建筑具有很高的匹配性,可为精装修设计带来便利。
图1 结构体系组成
图3 标准层结构三维轴测图
图4 典型结构节点构造图
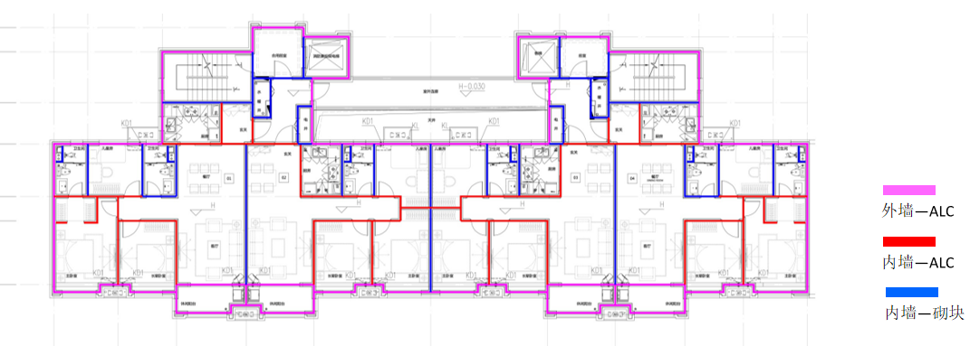
2.内外墙
本项目外墙采用ALC条板墙,可满足围护墙非砌筑比例≥80%,同时又具有在装配式建筑领域普及率高、施工人员熟练度高、施工快速、整体性好及防水构造技术成熟等优点。
按评分细则,内隔墙非砌筑比例需≥50%,采取ALC条板墙与局部砌块墙相结合的做法。在公区、户间墙、有水房间(厨卫)等区域采用砌块墙,此外均选用ALC条板墙。
图1 内外墙装配式方案

图2 ALC条板外墙施工图
图3 ALC条板墙示意图
图4 内墙无斜撑处 ALC双层条板内嵌
图5 内墙有斜撑处 ALC双层条板内嵌
图6 ALC墙节点处理
图7 ALC墙施工流程
3.设备管井
给水管道预留洞和预埋套管做法应根据室内或工艺要求及管道材质的不同确定。排水系统设计应尽量采用同层排水,减少排水管道穿楼板,立管应尽量设置在管井内,以减少预制构件的预留、预埋。

图1 卫生间降板式同层排水构造节点
图2 开敞式阳台排水及钢构件防腐做法
电气管线应尽量减少预制件的开孔、开槽数量,多利用楼板现浇层、外墙保温层等区域敷设配电管和安装插座、接线盒等设备;楼板、外墙等预制板上的开孔、开槽尺寸及位置应与土建专业协商确定。
图3 钢筋桁架板楼板管线布置
小结
1、装配式钢结构住宅的最低装配率为56%。在实际项目中考虑选用钢筋桁架楼承板,能极大的加快施工速度,提高施工效率。其较合理装配率为66%。
2、装配式钢结构住宅设计要从结构体系选取、建筑围护墙板选用及设备预留预埋等方面综合考虑。分别注意以下方面:
(1)结构体系的选取要保证结构构件与建筑布置的匹配性,做到墙面不露柱、梁柱节点不影响建筑完成面平整度。
(2)建筑围护墙板选用要重点关注材料整体性、防水构造技术成熟性及施工人员熟练度等方面。
(3)设备预留预埋方面应尽可能减少预制构件的预留、预埋或后凿,有条件可考虑管线装修一体化系统。
0人已收藏
0人已打赏
免费0人已点赞
分享
装配式施工
返回版块9504 条内容 · 132 人订阅
阅读下一篇
装配式建筑——建筑业发展必由之路现阶段我国建筑业面临的最大问题是劳动力短缺,而装配式建筑相较于传统建筑方式具有明显的环保、节能、效率优势,最关键在于能够将建筑工人产业化,极大的拓宽产业劳动力来源。从海外产业发展经验来看,其普及程度非常高,有丰富的经验可以借鉴,这决定了装配式建筑将成为我国建筑业转型升级的必由之路。 — 1 — 装配式建筑——建筑行业的工业革命 装配式建筑是用预制部品部件在工地装配而成的建筑。在具体应用上,装配式的建筑方式是指在工厂通过标准化的方式生产建筑关键构件和部品部件,在现场再通过装配化的方式进行安装施工、主体施工和装修装饰的同步,从而将建筑生产全过程联接为一个完整的产业系统,以实现建筑的生产、供给、销售和服务的一体化流程。其主要特点如下:
回帖成功
经验值 +10
全部回复(0 )
只看楼主 我来说两句抢沙发