一、总体实施思路
通过标准化设计、工厂化生产、装配化施工、一体化装修和信息化管理 ,达到工期、质量、安全及成本总体受控的目的。

二、标准化设计
1、施工图设计标准化
施工图设计需考虑工业化建筑进行标准化设计,通过标准化的模数、标准化的构配件通过合理的节点连接进行模块组装最后形成多样化及个性化的建筑整体。

2、构件拆分设计标准化
构件厂根据设计图纸进行预制构件的拆分设计,构件的拆分在保证结构安全的前提下,尽可能减少构件的种类,减少工厂模具的数量。

3、节点设计标准化
预制构件与预制构件、预制构件与现浇结构之间节点的设计,需参考国家规范图集并考虑现场施工的可操作性,保证施工质量,同时避免复杂连接节点造成现场施工困难。
3.1、预制外墙节点设计

预制外墙套筒连接区竖向节点大样
采用半灌浆套筒,预制墙板内钢筋通过机械连接与灌浆套筒进行连接,下层墙体外伸钢筋插入上层墙体套筒空腔内,后注入注入高强灌浆料进行锚固。
墙体外侧采用弹性防水密封胶条进行封堵,防止注浆料从外侧渗漏,同时可保证上下层墙体之间保温的连续性。

非套筒区域直接通过注入高强灌浆料连接,现浇板面筋伸入预制外墙进行弯折锚固。
墙体顶部设计倒梯形型箍帽保证墙体竖向钢筋的连续。

预制外墙板墙体一侧预留钢筋为开口箍,出筋长度为180mm。
后浇段内墙体箍筋为分离式箍筋,便于后浇段区域箍筋的绑扎。
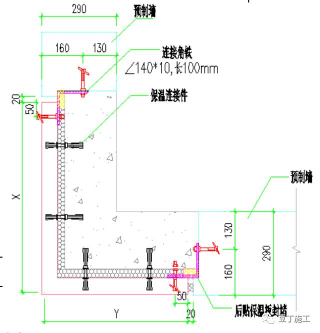
3.2、PCF板加固节点设计

L型PCF板加固节点
PCF板与混凝土后浇段通过保温拉结件粘接连接,PCF板与两侧预制外墙连接通过设置L型连接角铁,角铁型号为140×10,长100mm。
转角PCF板安装时通过角铁进行初步的固定,保证PCF板与相邻两侧外墙之间的平整度及拼缝;

叠合板与端支座之间水平方向设计搭接10mm,墙体可对叠合板起到部分支撑作用,同时可以防止漏浆。
3.3、叠合板连接设计

叠合板与叠合板拼缝处预留120mm宽、5mm厚的凹槽,通过此凹槽预留因楼板标高控制偏差或楼板厚度偏差引起的错台问题,后期装修时在凹槽内铺设网格布作为加强措施进行装饰面的施工,保证楼板的整体平整度。
3.4、阳台、空调板节点设计

预制阳台及空调板为悬挑结构,与楼板连接采用甩筋方式连接。预制阳台上部钢筋伸入楼面现浇板,与面筋绑扎连接。预制阳台与预制外墙内叶板搭接10mm。
3.5、预制楼梯节点设计

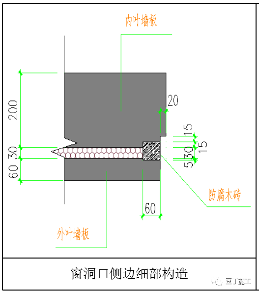
3.6、门窗部位节点设计

门洞口细部做法
预制外墙门洞左右两侧及上部设置防腐木砖,用于门的固定,在底部设置一道加强钢加强墙体的整体刚度,保证墙体吊装过程中不因墙体自重发生损坏。


在窗洞上下口和侧部都设置企口、防腐木,防腐木尺寸为100X60X50mm,内穿锚筋一端锚固入内叶墙一端锚固入外叶墙,50mm厚的防腐木入外叶墙15mm,入内叶墙5mm。

窗框固定在防腐木上,窗框与预制构件之间的缝隙用发泡剂填充,并用硅酮耐候密封胶封堵。窗户四边留有20mm企口。
3.7、预留洞口节点设计

外挂架预留孔采用喇叭口形:其中内叶墙内侧面、内叶墙外侧面、外叶墙外侧面处孔径分别为30mm、40mm、60mm。

在预制外墙板上预留向下倾斜的洞口。空调孔洞需预留在预制墙板中。
预制外墙及保温板部位DN75PVC直接头提前在预制构件预埋,后浇墙板DN75PVC管在现场后连接。
3.8、预制外墙拼缝处节点处理

外墙水平缝节点
外墙从内至外依次为现浇混凝土、挤塑聚苯板保温层、混凝土外叶板、聚乙烯泡沫塑料棒、建筑耐候密封胶,保温层之间选用弹性防水密封材料封堵。
聚乙烯泡沫塑料棒,塞入指定深度,保证建筑耐火密封胶打入一定深度,起到密封作用。

外墙由内至外依次为现浇混凝土、岩棉封堵、防水空腔、聚乙烯泡沫塑料棒、建筑耐候密封胶。
三、工厂化生产
预制构件在工厂进行统一生产,本工程采用的预制构件生产厂家为中建科技武汉有限公司,有关构件生产方面的内容由构件厂进行介绍。

四、装配化施工
1、平面布置
道路布置:现场施工道路需尽量设置为环形道路,其中构件运输道路需根据根据构件运输车辆载重设置成重载道路;道路尽量考虑永临结合并采用装配式路面。
堆场布置:吊装构件堆放场地要以满足1天施工需要为宜,同时为以后的装修作业和设备安装预留场地。预制构件堆场构件的排列顺序需提前策划,提前确定预制构件的吊装顺利,按先起吊的构件排布在最外端进行布置。
大型机械:根据最重预制构件重量及其位置进行塔式起重机选型,使得塔式起重机能够满足最重构件起吊要求。

2、吊装顺序
提前策划单位工程标准层预制构件的吊装顺序,构件出厂顺序与吊装顺序一致,保证现场吊装的有序进行。
预制构件吊装顺序为:预制墙体-叠合梁-叠合板-楼梯-阳台-空调板。

外墙吊装顺序为先吊外立面转角处外墙,通过转角处外墙作为其余外墙吊装的定位控制基准,PCF板在两侧预制外墙吊装并校正完成之后进行安装。
叠合梁、叠合板等按照预制外墙的吊装顺序分单元进行吊装,以单元为单位进行累积误差的控制。
3、计划跟踪
根据工程的总进度计划编制工程的装配式结构施工进度计划,构件厂根据结构施工进度计划编制构件的生产计划保证构件能够连续供应。
与常规项目不同,装配式混凝土结构主体结构施工还需编制构件的安装计划,分为季度计划、月计划、周计划等,并将计划与构件厂进行对接,以此指导预制构件的进场。

4、构件验收
验收程序

重点验收内容

5、施工工艺及质量控制

5.1预制墙体安装控制要点





5.2、叠合梁、板安装控制要点



5.3、预制阳台安装控制要点



5.4、预制楼梯安装控制要点



5.5、模板安装施工质量控制要点
项目现浇部分采用铝合金模板,利用铝模成型效果十分规整的特点与预制构件尺寸精确的特点结合,做到整个结构的免抹灰。
装配式结构铝模较传统现浇部分的主要区别为预制墙体后浇带部分,利用预制墙体的外叶板或PCF板作为外模,铝模仅加固内侧部分,后浇段外侧仅设置背楞加固。外侧背楞与内侧背楞之间的连接采用在预制墙体内预埋止水螺杆内杆的措施。


5.6、注浆工程施工质量控制要点



6、验收组织
6.1、分部、分项工程验收
装配式结构工程质量验收合格后,应将所有的验收文件归入混凝土结构子分部工程存档备案。

6.2、混凝土结构检验批划分
装配式结构预制构件原材料、预制构件安装工程、注浆工程检验批均按照每流水段为一个检验批进行检验。
五、一体化装修

外墙门窗及外墙饰面砖随预制外墙同步工厂化生产,避免后期装修。

采用夹心保温外墙板,外墙保温工程不单独施工。

现浇部分采用铝模施工,与装配式结构结合,可避免后期抹灰,可直接进行墙体装饰面的施工。

水电等设备专业线盒在预制构件内预埋,避免后期剔凿。
六、信息化管理

采用BIM技术对现场进行建模应用,模拟施工现场,对预制构件进行深化设计、施工进度及构件吊装模拟。

对现场进行实时视频监控

预制构件内预埋芯片实时跟踪预制构件在生产、出厂、卸车、安装及验收的状态。
七、成本对比




0人已收藏
0人已打赏
免费0人已点赞
分享
装配式施工
返回版块9504 条内容 · 132 人订阅
回帖成功
经验值 +10
全部回复(0 )
只看楼主 我来说两句抢沙发