

巴西装配式木屋专注于对景观和工艺的研究探索。它将原始休息寓所进行当代的诠释演绎,使其不仅仅是一处能够让人欣赏远方风景的场所。其简洁高效的设计形式深入渲染了建筑场地氛围,并将其转化为有效的景观资源。


Curucaca山谷位于巴西南部山区。该地景观以其富有冲击力的观感和崎岖地形为特征,周围被典型的巴西大西洋森林植被覆盖。



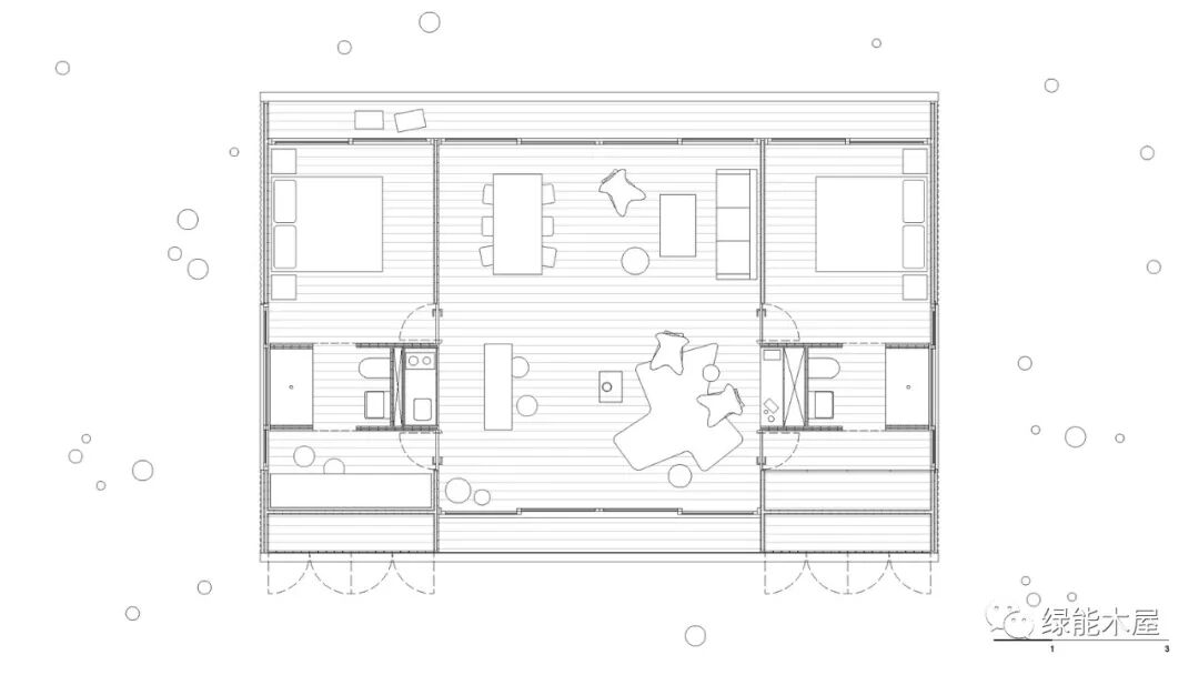
MINIMOD坐落在一片茂密森林景观中的一处空地上,紧邻陡峭的峡谷,可欣赏山谷的壮丽景色。


即插即用的设备要求可以随时进行组装连接并使用,无需任何复杂的操作。
因此,在安装和享受MINIMOD时必须要求简单快捷,包括从预制工厂到观景场地安装的全过程。



(转载于绿能木屋 版权归原作者所有)
0人已收藏
0人已打赏
免费0人已点赞
分享
项目案例
返回版块1988 条内容 · 80 人订阅
阅读下一篇
Assembly Three装配式木屋? Studio Nine Architects 所有设计都是完全独立的,集成服务设施与附属设备都采用了隐藏式的安装手法,这种设置使建筑没有了正立面与背立面的区别,真正做到了360度无死角。 感谢
回帖成功
经验值 +10
全部回复(1 )
只看楼主 我来说两句 抢板凳巴西装配式木屋专注于对景观和工艺的研究探索。它将原始休息寓所进行当代的诠释演绎,使其不仅仅是一处能够让人欣赏远方风景的场所。其简洁高效的设计形式深入渲染了建筑场地氛围,并将其转化为有效的景观资源。
回复 举报