土木在线论坛 \ 装修设计 \ 家装设计 \ 40㎡住一家三口,衣帽间、书房、开放式客餐厨、榻榻米,一个都不少!

40㎡住一家三口,衣帽间、书房、开放式客餐厨、榻榻米,一个都不少!

发布于:2021-11-26 14:16:26 来自:装修设计/家装设计 [复制转发]
图片

说在前面




这套40㎡的公寓常住人员为一家三口。设计师在有限的空间内,规划了2间卧室、独立衣帽间、开放式客餐厨、书房和充足的储物柜,满足一家人日常的使用需求。

图片

房屋信息



坐      标:台湾省

户      型:两室一厅

面      积:40

设      计:好室设计

摄      影:Hey!Cheese

居住人口:一家三口


图片

图片
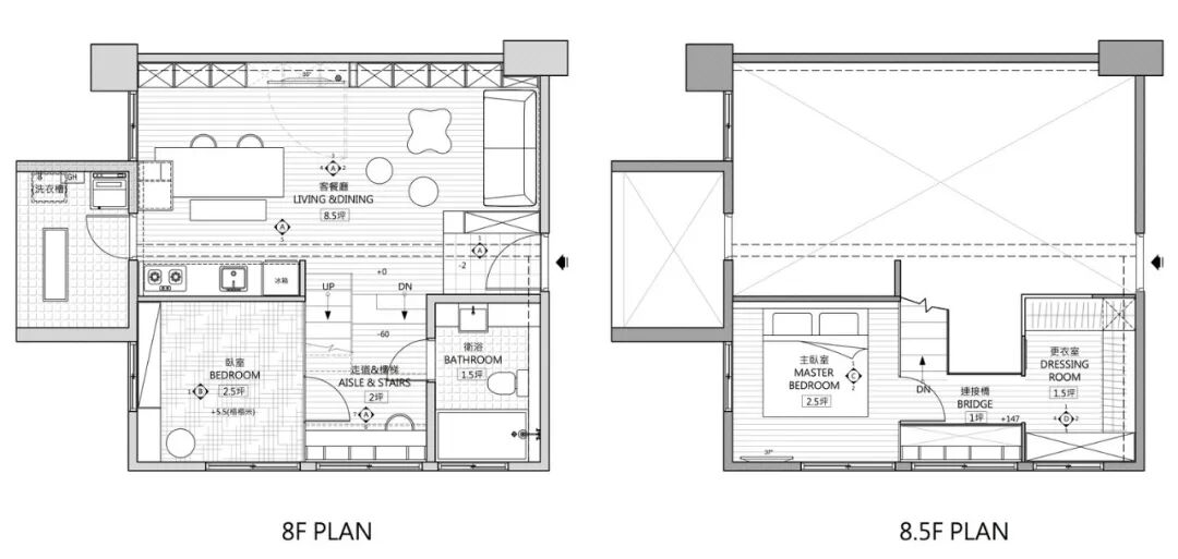
 平面布局图

一层安排了玄关、开放式客餐厨、阳台、榻榻米活动区、卫生间。二层为主卧和衣帽间,中间利用廊道连接。楼梯动线区,布置通高书柜和办公区,榨干每1㎡!



玄关


图片
 入户区

图片
 地砖+木地板,划分玄关和客餐厅

换鞋凳下方的层板格,收纳常穿的鞋子。上方是一组封闭收纳柜,中间悬空,让光线恣意穿梭。




客餐厅


图片

位于右前方的客餐厅,未来是承载最多家庭记忆的空间,松木+绿色系,满足一家三口对于家的想象,简单幸福。

图片
图片

一整排收纳柜,有藏有露,电视机嵌入其中,封闭柜门均采用隐藏式把手,保持空间的宽敞整洁。
图片

电视机可以沿滑轨弹性旋出,也可收纳回墙面,维持对餐桌的水平视角。



厨房


图片
 大人备餐时,可随时关注孩子的动向

图片

餐桌一侧沿墙布置了开放式厨房,黑白配色,简洁利落,冰箱、蒸烤箱、微波炉等一应俱全,满足基本的烹饪需求。



娱乐区


图片
 一层活动室+卫生间,二层主卧+衣帽间

通过设计师的安排,在主卧下方设置了家庭活动室,卫生间在步入式衣帽间的正下方,上下功能相互补充。
图片
各空间看似独立,实则紧密以绿色贯串对话。
图片
 日式榻榻米

图片

娱乐区和楼梯之间用一面玻璃隔断,避免碰头。
图片

开放柜格,增加储物功能,每一处角落都有利用到。



楼梯


图片
 运用松木夹板打造书墙

楼梯间增加独立办公区,沿着空中桥梁的中庭墙和下方的过道创建书墙,除扩展空间尺度消除压迫感外,也能创造视觉轴线上的延续。
图片
 二楼主卧



二层 主卧


图片

主卧床头的实墙保留私密性,侧面的玻璃隔断增加视觉通透感。
图片

主动线楼梯结合过道,串接主卧和独立衣帽间,两者正好为相对紧密的连续功能。


图片
 从主卧看向衣帽间

图片
 二楼书架墙



衣帽间


图片

开放层架+抽屉柜,分门别类,搭配一面穿衣镜,方便日常穿搭。

图片

从架构的外层,设计师使用窗口来构建场景,但使用真实和虚构的门形状从内层创建框架。

图片
 视觉关联不同场景
图片

在保持主卧隐私的同时,设计师仍然留下了光影,通过衣帽间的角窗,可看到楼下客餐厅的场景。

如有侵权,请联系删除。

  • 放水发电
    放水发电 沙发

    这是一个很不错的学习参考资料, 但是表述的还是过于简单,未提供相应参数及技术要求等, 建议上传一些附件技术资料(如CAD外形尺寸图和对应的型号规格及技术参数等,以方便设计人员选用),? 不过这里还是要谢谢楼主能发布和分享出来给大家学习和参考使用!

    2021-11-27 08:16:27

    回复 举报
    赞同0

家装设计

返回版块

22.34 万条内容 · 389 人订阅

猜你喜欢

阅读下一篇

70平原木风装修效果图,小户型的装修典范

一对喜爱烹饪的新婚夫妻,一个70平米的小屋,一个属于两个人共享的“私人食堂”。 玻璃隔断将客厅、餐厅和玄关分隔开的同时又紧密相连,L型的空间功能齐全的同时,增加了共享空间的面积。木质吊顶和书架洞墙的串联,将空间的整体通透度又提升了一个档次。 书柜用几何图形的错落布置,“实心”和“空心”结合,在增加收纳功能的同时,更增加了俏皮。轻薄的工作台面,美观大方。

回帖成功

经验值 +10