来源:网络,侵删!


图1 4轴剖面图



图3 考虑“恒载(计入覆土荷载)+Y向风”时的基底压力


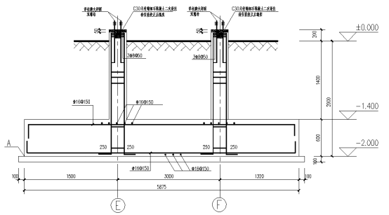
图4 筏板基础大样
(受拉)
,参考《高层建筑混凝土结构技术规程》JGJ3-2010,第12.1.7条,本结构高宽比大于4,基础底面不宜出现零应力区。
,基底不出现零应力区,满足要求。
,
满足要求。
2)梁柱节点验算。

0人已收藏
0人已打赏
免费0人已点赞
分享
钢结构工程
返回版块46.53 万条内容 · 1213 人订阅
阅读下一篇
科技创新开启爬架行业数字化监管新时代我国是建筑大国,建筑业作为我国的支柱产业,对解决就业促进GDP增长具有重要作用。与此同时也面临能源消耗大、安全隐患突显、环境污染比较严重、生产制造收益不高等难题。 针对工地来讲,保障施工安全是头等大事。智能爬架附着在建筑外墙,封闭性强对保障施工安全具有重要作用。但保障施工安全更离不开项目安全管理工作,管理作业人员安全,管理设备安全,是一项非常繁杂的工作。智能爬架如何在保障施工安全的同时,又能便捷项目安全管理呢?鑫筑云建智能爬架运营服务平台,将物联技术、大数据分析技术、智能化传感设备等运用到施工工地,帮助用户进行爬架设备的监管和远程控制。并把安全监管放到第一位,让爬架施工更具安全性、更加智能化进而提高管理及施工效率。
回帖成功
经验值 +10
全部回复(0 )
只看楼主 我来说两句抢沙发