来源:网络,侵删!
更多专业讨论,行业资讯,免费资料课程→扫描底部二维码加入群聊↓↓
建筑电气从广义来讲是以建筑为平台,以电气技术为平台手段,在有限空间内,为创造人性化生活环境的一门应用学科。
从狭义来讲就是在建筑中,利用现代先进的科学理论及电气技术(含电力技术,信息技术以及智能化技术等),创造一个人性化生活环境的电气系统,统称范围建筑电气。很多电气初学者都不会看图纸,今天就给大家分享一下建筑电气识图基础知识,供初学者们参考学习。
电气设计平面图主要用来表示电源进户装置、照明配电箱、灯具、插座、开关等电气设备的数量、型号规格、安装位置、安装高度,表示照明线路的敷设位置、敷设方式、敷设路径、导线的型号规格等。

设计说明是一套图纸的灵魂,起到了总纲挈领的作用,通过设计说明,可以参透一个设计的设计思想。

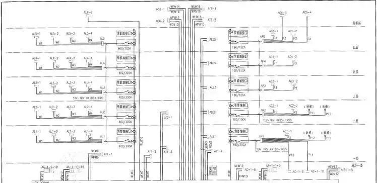
用规定的符号表示系统的组成和连接关系,它用单线将整个工程的的供电线路示意连接起来,主要表示整个工程或某一项目的供电方案和方式,也可以表示某一装置各部分的关系。

是用设备、器具的图形符号和敷设的导线(电缆)或穿线管路的线条画在建筑物或安装场所,用以表示设备、器具、管线实际安装位置的水平投影图。是表示装置、器具、线路具体平面位置的图纸。











-
-
控制电缆:用于传输控制电流;常用控制电缆:KVV KVLV
-




标注-4

全部回复(0 )
只看楼主 我来说两句抢沙发