来源:新筑时代、机电人脉
如有侵权,请联系删除
准备阶段
1.1 工地标准化
遵守施工安全文明形象管理规定,在施工现场合适位置正确张贴标志标贴、设置标化标牌及消防设施。

定制精装成品保护尺寸清单△
1.2 现场准备工作
现场交底:
■ 原水电、通电、通水是否正常,水电度数确认。上楼层下水是否有漏水现象;
■ 是否存拆改项目,如有,确定拆改项目及位置(拆改项目必须通过物业管理部门审批。复印文件,客户签字,项目部存档);
■ 上下水点位与管线布置等水路改造方案确定并标记;
■ 办理开工手续,确认开工时间,填写现场交底单。
技术交底:
■ 交底部位;
■ 交底内容要有针对性,和项目情况吻合;
■ 班组需签字确认;
■ 必要时要现场进行指导。

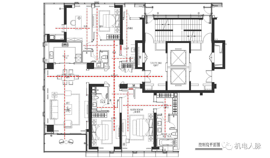
1.3 前期放线
按照土建轴线放出每个房间的“十字线”;根据图纸要求放出每个房间的 “中心控制线”。放线工作需在原土建腻子铲除后方能进行。

控制线平面图样板△

■ 进水口、出水口、水表的距离、 数量确认;
■ 煤气管道、排烟口、煤气表的距 离、数量确认;
■ 开关、插座的距离、数量确认;
■ 现场用记号笔做标记,填写各房间水电气位置测量单,现场深化设计师等签字确认;
■ 所有水电点位须经业主确认,并做好确认记录。

水电阶段
2.1 辅材进场
对进场材料进行验收,检查送货单编号、品牌是否与公司要求的辅材一致;型号规格是否与订单一致;数量否与订单一 致;材料是否有破损。

2.2 水电开工
■ 强弱电管宜分色安装,分别采用红色、蓝色PVC管来区分;
■ 弱电管线与照明插座管线的平行间距不应小于 300mm;
■当交叉敷设时须垂直分布且同一系统不得有多处交叉,强弱电线不能敷设在同一根管线或线槽内。

墙地面暗管安装时,墙地面开槽应顺直,无扭曲,开槽横平竖直,墙面应不允许有横槽出现。建议采用环保型的专业开槽机施工。

弹线定位:依据施工图纸和水电布管方案在墙、顶面弹线标出剔槽、孔的位置和走向。
暗敷剔凿凹槽:嵌墙暗敷时,使用专用工具剔凿凹槽。槽深比管外径大15mm,槽宽比管外径大20~30 mm,有管件和管卡的部位视管件尺寸适当加大。

2.4 水电隐蔽
■ 冷热水平安装时,热水管应在冷水管的上方(上热下冷);
■ 垂直安装时(面对水管)左热右冷,器具接驳应左热右冷;
■ 冷热水管道平行150~200mm;冷、热水出水口水平误差±5mm;
■ 冷热水管应分色安装,冷热水管宜分别采用蓝色、红色PPR管(或使用有颜色标识的管道)。

管道固定:用专用管卡或铜丝将管槽内的水管进行固定,公称直径DN20的管道固定间距不大于800mm; 端头及拐弯处不大于200mm;
管道敷设:水电管线吊顶内安装敷设,应遵循电线管在上,水管在下(电上水下),平行间距不小于200mm。

PPR花洒定位器:冷热水管出水口水平位置必须准确,安装水平,高度、深度一致,没有特殊要求的淋浴房冷热 出水口间距150mm;需安装PPR花洒定位器---PPR双联内丝弯头。

二次排水地漏:下沉式卫生间在长期使用的情况下,污水可能会渗漏到沉箱中,然后在沉箱中积聚,沉箱长期浸泡污水后,可能会溢出到室内,或会渗漏到楼下业主家,可采用二次排水做法增加一个防臭PVC同层排水地漏就可以解决此问题。

■淋浴区不允许铺设地暖盘管;
■ 同一根地暖盘管不得有接头;
■ C20混凝土面层边缘用10mm厚挤塑保温板作为伸缩缝;
■ 凝土浇注完成后养护不少于7天。混凝土面层不允许任何材料钉入。

横截面做法△
木瓦油阶段
3.1 卫生间防水
淋浴区防水:淋浴房靠淋浴花洒墙面的防水层如无特殊设计要求,防水层高度不得低于1800mm;浴缸处防水层高度不低于800mm;台盆处防水层高度不低于1200m。
边角防水:非淋浴的位置防水高度不低于300mm。

阴角处理:用圆弧型铁抹将1:2水泥砂浆在阴角部位抹成直径50mm的圆弧,并用不小于300mm宽的无纺布或玻纤布作为附加层,纵向搭接长度不小于50mm。
防水涂刷方向:防水涂料涂刷至少3遍,每遍涂刷方向相互垂直。

地漏口防水处理:地漏口防水做碗口状处理,防水须涂刷到地漏口内侧10mm。
加强处理:管道根部等部位1:1水泥砂浆做弧形护角进行密封处理,再用无纺布或玻纤布作为附加层,并进行防水增强处理。

干湿分区做止水条:止水坎可采用混凝土、镀锌铁皮或扁铁来施工,边缘需用水泥砂浆及防水层封堵严密。如采用金属止水带时,卫生间混凝土底部及侧面需开深度10mm小槽,止水条安装时插入槽内,并用防水材料封堵严密。

卫生间门槛石防水:1、可在门槛石下部与墙体同宽的暗混凝土止水带。2、优先安装门槛石,采用湿贴的方法安装,养护3~7天后四周再用防水材料封堵。然后再贴卫生间墙地砖或石材。

下沉式卫生间沉箱试水合格后,在沉箱中填入陶粒,再用40厚C20混凝土水找平,内置Φ4@200冷拔丝,浇注混凝土,随打随抹,养护7天后,再做防水层及闭水试验。

闭水试验:闭水试验的蓄水深度不小于地面最高点20mm, —般以30~50mm为宜,蓄水时间为24小时。
楼下检查:在闭水试验的前期每1小时应到楼下检查一次,后期2小时到楼下检查一次,若发现渗水情况,应立 即停止试水试验,重新进行防水层完善处理。

安装验收阶段
4.1 中间验收
项目部验收人员对房屋整体验收:确定前期工序是按照施工标准规范化施工的,确保接下来成品一次性安装成功.
项目部验收人员参照:确定现场已具备安装成品条件,确保产品与现场情况匹配一致。

项目部验收人员对厨卫验收:确认已完成隐蔽管线并标识,完成面达到验收标准。
项目部验收人员对卧室验收:地面是否找平,标高是否准确,地面表面平整,干燥;门洞垂直、方正、尺寸正确。

4.2 集成吊顶安装
吊顶防线及定位、安装边角线及龙骨:确认吊顶标高并标记,龙骨吊筋安装牢固并进行调平、间距符合设计要求。
安装扣板及模块设备:按照产品安装要求安装扣板、照明模块、取暖模板、换气模块。

精修与调试:确认集成吊顶无高低不平,整齐美观,无明显缝隙,各模块运作正常,顶部无明显共振现象。

4.3 卫浴安装
坐便器安装:前期使用安装模板,还可以对结构预留孔起到一个尺寸复核的作用。
打胶:座便器安装模板定位后打胶,注意打胶位置必须 在轮廓线内侧约3mm向内,安装好座便器后,把周边的硅胶拭净即可。

坐便器验收:坐便器外观是否外观完好、盖板牢固、水件到位,水顺畅,无漏水现象,底部收胶平整。
4.4 台下盆安装
■ 台盆铁架可采用国标镀锌角钢,焊接处做防锈处理或采用横向镀锌方钢固定托住台盆;
■ 为便于台盆拆卸检修,台盆固定于固定构件上,固定构件与石材垫块用不锈钢或镀锌螺栓固定,垫块背面及台面背面粘结部位需经打毛处理用大理石胶粘结固定,台盆与固定构件连接处需用橡皮垫块,台盆与台面板下沿口用耐候胶密封;
■ 台盆或水槽安装时,禁止仅用云石胶粘、而不使用钢架或镀锌方钢安装;

■ 浴缸与石材相接部位按浴缸边缘压石材的做法施工,石材台面按整块石材根据浴缸尺寸切割镂空磨边工厂加工完成后现场安装,石材与浴缸交接处用耐候胶收口;
■ 浴缸周边石材部位作4*4镀锌角钢支撑架,钢丝网水泥砂桨粉刷后再安装石材。重量较重铸铁等材质的浴缸留设石材检修暗门,检修门规格及方向需符合检修要求;亚克力等材质浴缸较轻,不建议设置检修口。

水路勘察:水路通畅无渗漏,接驳口丝扣外露与墙砖平齐。
开关安装:开关上口距地面装饰完成面高度1.4m,同一室内安装高 度保持一致,开关开启方向 一致,相线必须进开关,开 关面板不得安装在门背后。
电路测试:插座通电正常,开关调试正常,照明线路正常,其他路线通畅。

4.7 美化精修
细节无划痕:在施工过程中遇到少量墙、地砖划痕抛光打磨。
五金件无划痕:在施工中或家具搬运过程中五金件遇到的少量划痕,抛光打磨。
房屋美化:房屋整体保洁,清理家具残留的油漆或胶水,无粉尘残留。

4.8 完工保洁
保洁应做到窗明几净,一尘不染,特别死角出需加强处理,保洁顺序应为粗保洁~细部加强处理~精保洁~最后石材结晶,重点检查马桶黄斑、地漏内部、光带处、门套上口。

项目交付阶段
5.1 交房前查漏补缺
交付前认真检查房屋存在的问题,并督促施工班组及时修复,配合开发商复查查缺补漏,现场发现的可以很快解决的问题,需要第一时间及时解决。

对业主所提问题分类编制台账,项目部应制定详细的完成时间计划表,进行集中销项维修处理;物业及管家每户进行跟踪,以确保在时间内保质保量完成;防止由于维修不及时或维修 不当造成业主发函、投诉、索赔甚至退房现象。
┃ 最后我们用一张图来总结一下精装修施工的全流程:

0人已收藏
0人已打赏
免费1人已点赞
分享
建筑消防给水
返回版块28.41 万条内容 · 744 人订阅
阅读下一篇
动画演示:雨淋灭火系统组件、原理收录于话题 雨淋系统组成 由开式洒水喷头、雨淋报警阀组等组成,发生火灾时由火灾自动报警系统或传动管控制,自动开启雨淋报警阀组和启动消防水泵,用于灭火的开式系统。 具有下列条件之一的场所,应采用雨淋系统: 1 火灾的水平蔓延速度快、闭式洒水喷头的开放不能及时使喷水有效覆盖着火区域的场所; 2 设置场所的净空高度超过本规范第6.1.1条的规定,且必须迅速扑救初期火灾的场所;
回帖成功
经验值 +10
全部回复(0 )
只看楼主 我来说两句抢沙发